CHARMING COTTAGES AT THE OCEAN COURSE GOLF CLUB

Kiawah, South Carolina

Discover The Cottages at The Ocean Course

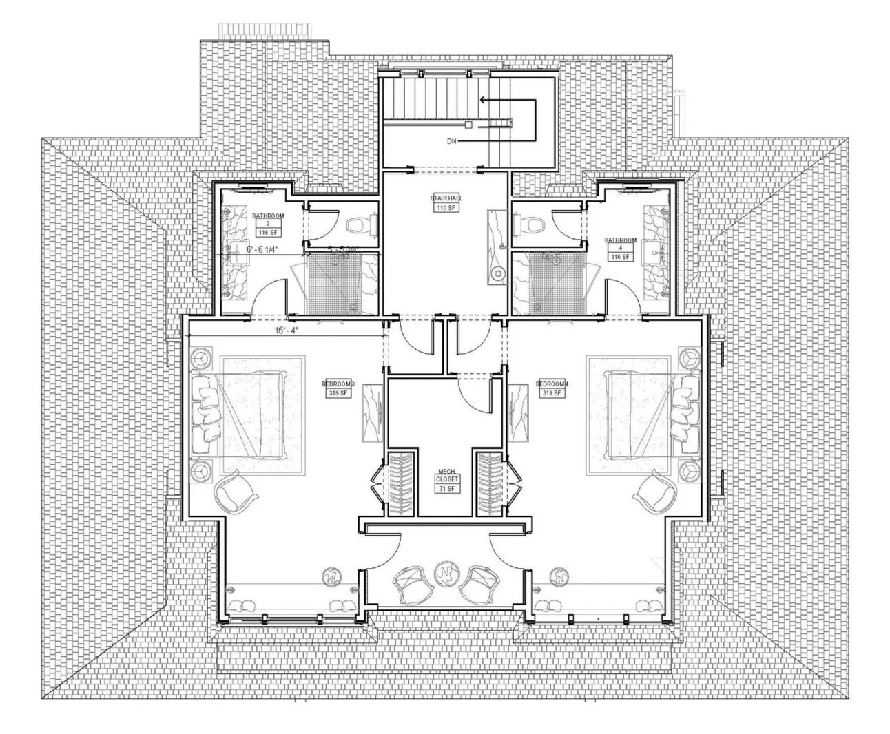
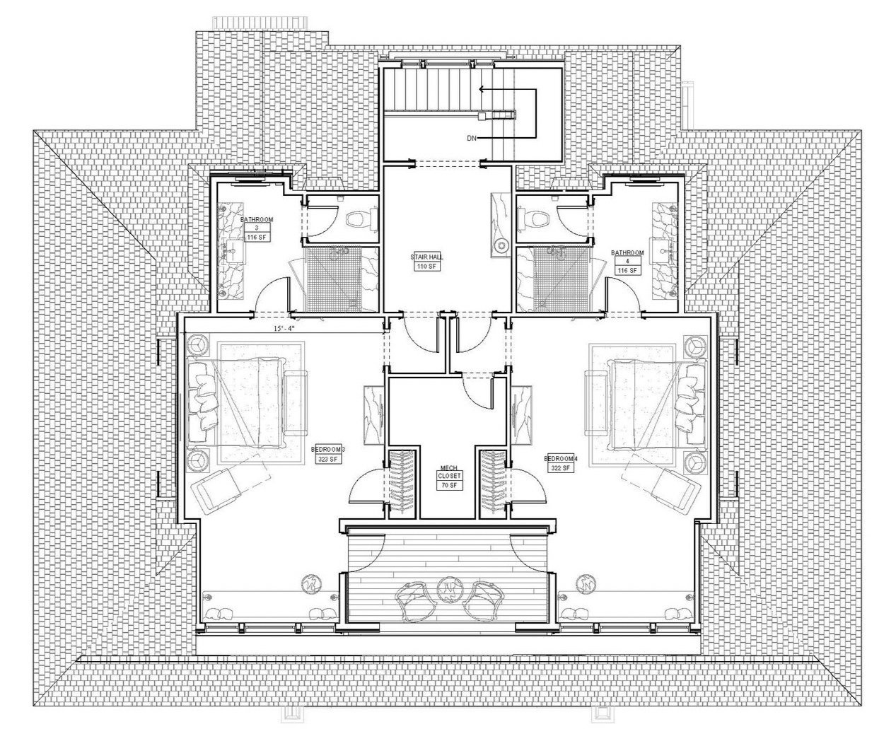
The Cottages at the Ocean Course carry forward the charming Shingle-style character of the Clubhouse, as well as its sensitivity to the natural dunescape along the eastern end of Kiawah Island. Designed to host visiting foursomes, each cottage offers a wood deck walkway leading to a columned porch; inside, a comfortable living room features a fireplace and oversize windows that look out to the driving range and the Atlantic Ocean beyond. Interiors are finished with hardwood flooring, custom wood wainscot, and custom paneling and crowns. A brick and bluestone terrace at each cottage offers comfortable seating surrounded by custom railings and lanterns. Each cottage provides four bedrooms with en-suite baths, accommodating up to eight guests. 

Gary Brewer, Project Partner and Designer
Robert A.M. Stern Architects

Photographer: Peter Aaron, Francis Dzikowski, OTTO
Renderings: Jeff Stikeman

Back to Portfolio

Previous
Previous

Hilltop House Overlooking Long Island Sound

Next
Next

Architect's Historic Foursquare Renovation