Old Sawmill Golf Clubhouse

Berkeley County, South Carolina

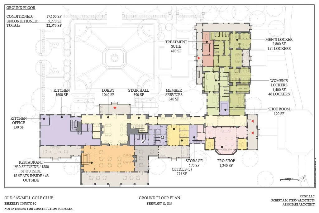
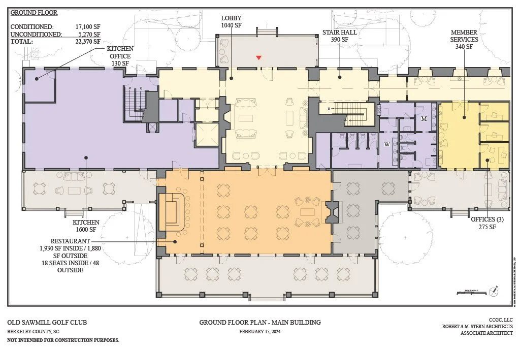
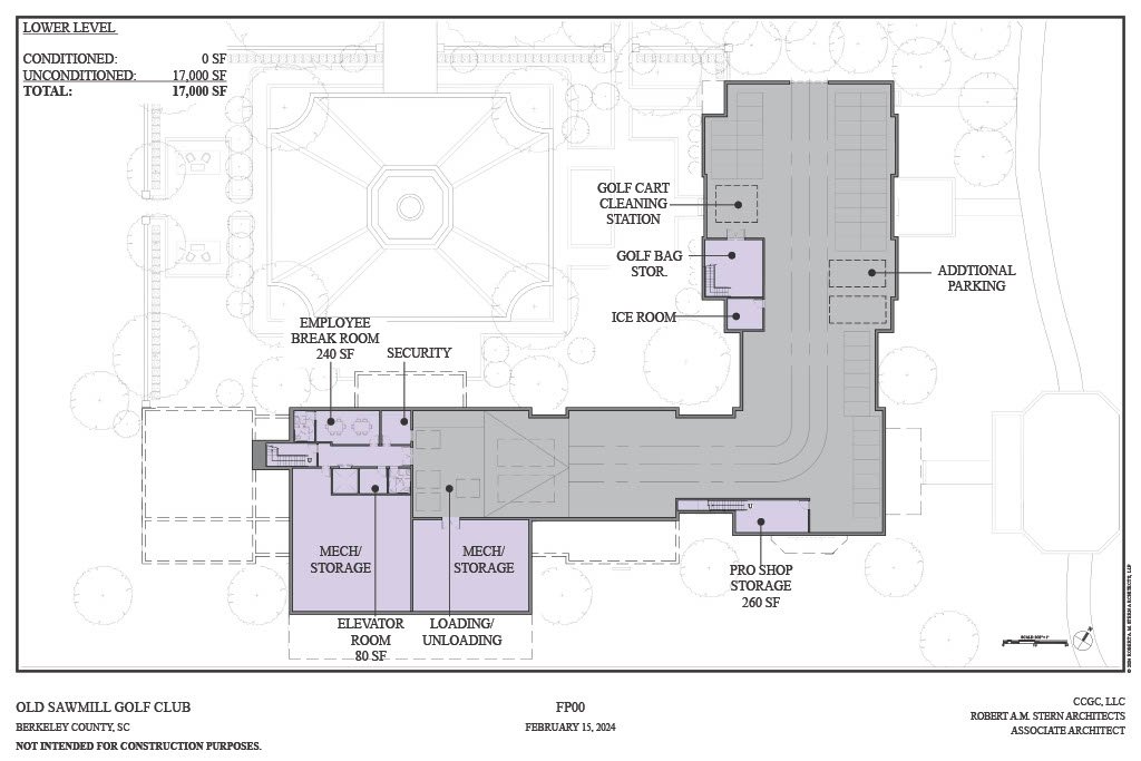
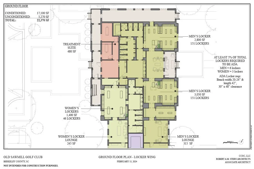
This clapboard-clad Colonial Revival clubhouse, designed for a new private course outside of Charleston, South Carolina, creates a strong first impression at the conclusion of a long axial entrance drive that leads to a welcoming motor court. To one side, a shingle-clad wing conceived to give the appearance of a later addition accommodates locker rooms; on the other side, the clubhouse overlooks the 18th hole with porches on two levels. A connected pavilion houses the pro shop. Parking is concealed behind landscaping on both sides of the entry drive.

Gary Brewer, Project Partner and Designer
Robert A.M. Stern Architects

Renderings: Jeff Stikeman

Previous
Previous

The Lake Club

Next
Next

West Beach Hotel